Vapaat tilat
Löydä uusi sijainti yrityksellesi
Teljäntori tarjoaa monipuolisia liike- ja toimistotiloja erinomaisella sijainnilla. Tutustu vapaana oleviin tiloihin ja löydä yrityksellesi sopiva paikka kehittyä ja kasvaa.
Ota yhteyttä:
041 328 6647
toimisto@arisannointi.fi
1. kerroksen vuokrattavat tilat
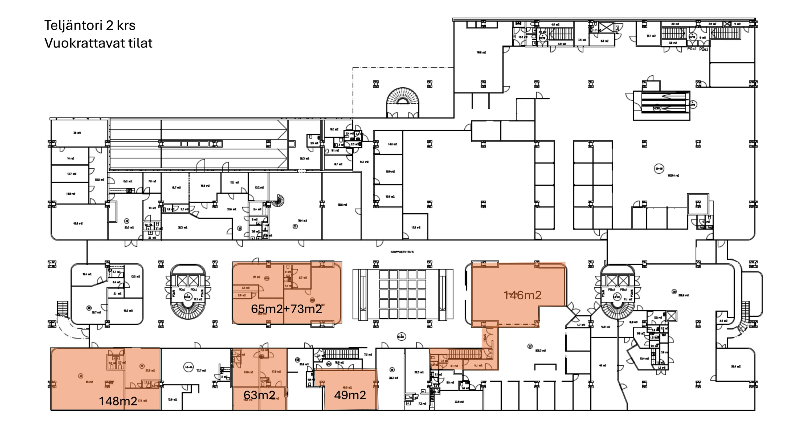
2. kerrokset vuokrattavat tilat
3. kerroksen B-tornin ja 6. kerroksen A-tornin tilat
Lataa kaikki kohteet pdf-tiedostona: Teljäntorin vuokratiloja 1.4.2026




